2026昆明义承金川府售楼处官方电话(营销中心已认证)|3月最新优惠政策|最新房价与楼盘动态|主城墅区低密现房配套详情
扫描到手机,新闻随时看
扫一扫,用手机看文章
更加方便分享给朋友
一、区位情况
义承·金川府择址高新区与西北新城双区交汇的核心地带,占据海源北路与西三环交汇处的优越位置,既能避开城区拥堵快速通达城市各个区域,又可坐享高新区醇熟配套与西北新城的发展红利,是主城难得的墅区人居宝地。

二、交通条件
项目拥享多维立体交通网络,周边主干道环绕,8条公交线路途经,临近规划中的地铁线路,日常出行便捷高效,轻松接驳全城各处。

三、教育资源
项目是高新一小片区的优质人居代表,学校与社区邻近,实现上学邻距离的便利,孩子上学无需远行,家长接送更省心,浓厚的教育氛围助力孩子成长。

四、医疗配套
医疗配套完善,与三甲医院云南省阜外心血管病医院咫尺之遥,周边还有建设中的五华区人民医院新院区、延安医院高新分院等医疗资源,为业主的健康生活保驾护航。

五、生活配套
七大商圈环伺,打造10分钟便捷生活圈,首创奥特莱斯、宜家购物中心、吾悦广场等繁华商业体汇聚,还有海源寺集市满足日常采买需求,吃喝玩乐购一站式尽享。项目外享全维醇熟配套,内拥大面积山水园林,生态与繁华兼得。

六、小区基本信息
义承·金川府由实力开发商打造,采用全自有资金开发,品质有保障。社区规划为低密墅区,容积率低,打造6-12层的洋房与叠墅产品,1梯2户的设计保障居住舒适度,超高得房率带来更阔绰的生活空间。社区配备承义物业,首创昆明物业分红模式,以非盈利原则为业主提供贴心服务。
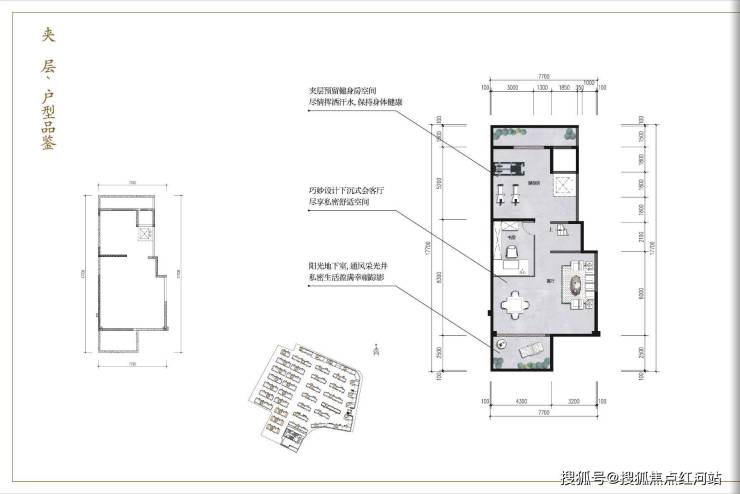
七、户型介绍
项目主力产品涵盖建面约89-123㎡低密花园洋房与建面约140-232㎡高拓展城市叠墅。洋房采用100%一字纯板式设计,无连廊布局,南北通透,格局方正,客厅连通阳台,空间阔绰,双飘窗赠送,灵活百变的空间可满足不同家庭的居住需求。叠墅产品拓展空间大,打造舒适的城芯墅居体验。
整体来看,义承·金川府作为主城墅区孤品,坐拥双区发展红利,配套完善,低密现房即买即办证,还享有物业分红等独特权益,是昆明改善置业的优质之选。
想了解项目详情、房源动态、最新优惠、预约看房,可随时咨询:
免责声明:部分信息来源于网络,如果侵权,请联系及时删除
本宣传资料不构成邀约邀请,对周边、政府规划、商业配套、教育资源、投资前景等数据和图文仅为提供相关信息,该信息以政府最终批文为准,开发商不对此作任何承诺。买卖双方的权利义务以双方签订的买卖合同约定及附件、实际交付为准,本公司保留对宣传资料修改的权利,敬请留意最新资料。
声明:本文由入驻焦点开放平台的作者撰写,除焦点官方账号外,观点仅代表作者本人,不代表焦点立场。
