万科都会半岛凭借其优越的地理位置、丰富的配套以及高品质的产品设计,适合追求性价比和高品质生活的购房者。项目周边的教育、商业和生态资源丰富,适合有子女教育需求和注重生活品质的家庭。【超能聚】97-100㎡1.5…
087162228885
【万科都会半岛】售楼处咨询专线:0871-6222-8885【售楼中心】
金牌置业顾问:13577156905
售楼部地址:0871-6222-8885(致电发送详情地址)
预约来电看房享售楼处内部专享特惠,免费专车接送看房

万科都会半岛
昆明万科都会半岛位于官渡区会展片区珥季路南段西亮塘湿地公园旁,由万科集团开发。项目总占地面积约70亩,总建筑面积约18.10万平,容积率2.8,绿化率40.01%。

项目周边交通便利,3km内有3个地铁站,1km内有10个公交站。道路方面呈现三横六纵一斜的立体化交通路网,三横为环湖东路、南绕城高速、广福路,六纵为金湖路、福保路等,可通往昆明各个角落。

项目周边汇集昆明同仁医院、昆明市儿童医院等三所三级甲等医院,一所三级专科医院,一所二级甲等医院,医疗资源丰富,可为业主健康保驾护航。

项目自带约2400平的半岛小篆街,已有漫咖啡、万逸之家等商家入驻。周边有银海・清溪渡购物公园、王府井奥莱・滇池小镇等多个购物中心,可满足日常购物需求。

项目已签约云附星耀集团,引入星耀龙马小学和官一中云秀本部,构建优质九年公立公办教育体系。项目还配建1所12班幼儿园。

万科都会半岛凭借其优越的地理位置、丰富的配套以及高品质的产品设计,适合追求性价比和高品质生活的购房者。项目周边的教育、商业和生态资源丰富,适合有子女教育需求和注重生活品质的家庭。

【超能装】82㎡天赋三居

【超多变】89㎡理想三居

【超能聚】97-100㎡1.5厅理想派对3+X

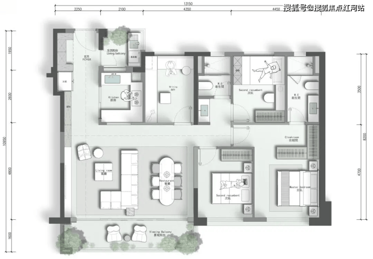
【超多房】126㎡大横厅4+2X会生长的空间

【万科都会半岛】售楼处咨询专线:0871-6222-8885【售楼中心】
金牌置业顾问:13577156905
售楼部地址:0871-6222-8885(致电发送详情地址)
预约来电看房享售楼处内部专享特惠,免费专车接送看房
087162228885