深度测评!昆明招商依云国际值得买吗?空港央企盘优缺点全拆解|3月份最新优惠政策
扫描到手机,新闻随时看
扫一扫,用手机看文章
更加方便分享给朋友
招商依云国际丨央企打造丨宜居社区丨名校护航
一、品牌实力测评:央企背书,置业安全感拉满

招商蛇口作为百年央企,深耕地产多年,全国打造无数品质楼盘,交付兑现力有目共睹。对比滇中新区内中小房企期房,招商依云国际无资金断裂、烂尾风险,工程质量、精装标准全程严控,实景现房呈现,品质看得见摸得着,对于预算有限、怕踩坑的购房者来说,央企品牌就是最强保障,这也是项目领跑空港片区的核心原因。
二、配套潜力测评:教育先行,短板与优势并存

【核心优势】教育配套率先落地,西南联大实验学校,解决家庭核心需求;低密社区居住舒适,央企物业靠谱;单价6字头精装现房,总价门槛极低,主城周边难寻同款。

【现存短板】片区处于发展期,大型商业、医疗配套仍在建设完善中,目前公共交通频次较少,更适合自驾出行,长期来看随着滇中新区发展,配套会持续升级。
三、户型产品测评:多元选择,刚需改善全适配

项目户型主打实用宜居,无鸡肋设计,覆盖全生命周期置业需求。77㎡两房紧凑温馨,首付低、月供无压力,纯刚需上车神器;99-101㎡三房动静分区、双阳台设计,三口之家居住舒适;143㎡洋房四开间朝南,空间阔绰;合院产品带花园露台,改善养老一步到位。全系精装交付,细节考究,自住、出租、旅居都合适,户型适配度无短板。
四、性价比测评:3字头精装现房,闭眼入不亏

在昆明主城房价居高不下的当下,招商依云国际3字头精装央企现房,性价比堪称断层领先。总价二三十万就能买精装两房,五六十万入手三房,既能享受央企品质、名校教育,又能坐拥低密宜居环境,不管是自住过渡、长期养老,还是长期持有坐等片区升值,都十分划算。对比同片区楼盘,价格、品牌、现房三大优势突出,是空港片区闭眼入的高性价比楼盘。
五、户型鉴赏
高层产品

77㎡两室两厅一卫一阳台
全南向采光,布局方正,空间宽敞,适合刚需或小家庭

87㎡三室两厅一卫一阳台
单阳台设计,功能分区合理,主卧带飘窗,采光充足

99㎡三室两厅两卫一阳台
端头户型,动静分离,明厨明卫,干湿分离,得房率较高

104㎡三室两厅两卫一阳台
方正户型,三个卧室均带飘窗,采光通风良好,适合改善型家庭
洋房产品

114㎡三室两厅两卫一阳台
南北通透,一梯两户,主卧带衣帽间,客厅与阳台连通,视野开阔
125㎡三室两厅两卫双阳台
南北双阳台,餐客厅一体,空间宽敞,适合多人口家庭

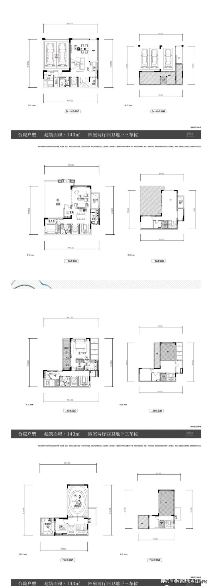
143㎡四室两厅两卫两阳台
三面采光,四开间朝南,大厅宽敞,主卧私密性好,适合大家庭或追求品质居住的家庭
合院产品

六、置业避坑指南
选房建议:避开临主干道楼栋,优先选择小区内部楼栋,中高楼层采光视野更佳、噪音更小;
核实细节:购房前仔细核对精装交付清单、保修期限,确认落户政策与学区入学要求;
适配人群:适合机场工作人员、预算有限刚需、教育型家庭、旅居养老群体,主城通勤族需考量自驾时长。
温馨提示
项目房源价格、户型余量、购房优惠实时变动,具体以售楼处现场公示为准,建议实地考察现房、查看户型实景、走访周边配套后,再结合自身预算做购房决策。
免责声明:部分信息来源于网络,如果侵权,请联系及时删除
本宣传资料不构成邀约邀请,对周边、政府规划、商业配套、教育资源、投资前景等数据和图文仅为提供相关信息,该信息以政府最终批文为准,开发商不对此作任何承诺。买卖双方的权利义务以双方签订的买卖合同约定及附件、实际交付为准,本公司保留对宣传资料修改的权利,敬请留意最新资料。
声明:本文由入驻焦点开放平台的作者撰写,除焦点官方账号外,观点仅代表作者本人,不代表焦点立场。
