昆明世茂璀璨世家|巫家坝旁品质红盘,精装现房户型全鉴,置业不踩雷,3月最新优惠政策
扫描到手机,新闻随时看
扫一扫,用手机看文章
更加方便分享给朋友
世茂璀璨世家丨距地铁约500米丨精装实景现房
一、项目核心概况:品牌匠造品质住区,现房置业更安心

昆明世茂璀璨世家是世茂集团布局昆明的璀璨系精品项目,定位城市中高端宜居社区,专为城市中坚力量打造有质感、有温度的理想居所。项目择址官渡区官南核心板块,紧邻康乐茶城,坐拥成熟生活圈,同时毗邻巫家坝片区,同步享受老城烟火气与新区发展红利,地段价值与升值潜力兼具。

社区规划秉持以人为本理念,41%高绿地率搭配层次丰富的景观园林,移步异景,闲暇时刻可漫步休闲,尽享自然绿意与鲜氧。2T4户纯板楼设计,摒弃高密度拥挤居住体验,保证每户的采光、通风效果与居家私密性,居住体验远超普通高层住宅。项目已实现全盘实景交付,房屋质量、户型格局、社区环境、物业服务一目了然,购房无隐性风险,拒绝置业踩坑。
二、醇熟全维配套:衣食住行一站式满足,生活便捷度拉满
交通出行:三横三纵交通路网四通八达,官南大道、锦西路、箱子公园路交汇,自驾出行畅通无阻;临近地铁2号线小街站,地铁加持实现高效通勤,快速串联昆明主城各大商圈、交通枢纽,跨区出行毫无压力。

商业生活:周边玫瑰湾金街、大润发等商业配套齐全,日常生鲜采购、生活购物、亲友聚餐、休闲娱乐无需远行,下楼即享便捷生活;3-5公里可达万达广场、爱琴海购物公园等大型商业体,满足高端消费、娱乐休闲需求,繁华生活近在咫尺。

教育医疗:片区教育资源丰厚,多所公立、私立学府环伺,覆盖学前教育、义务教育全阶段,孩子上学近便省心,家长无需长途奔波;周边三甲医院、社区卫生服务站分布密集,就医问诊便捷高效,为全家健康筑牢坚实防线。
三、明星户型深度鉴赏:精工打磨户型,适配全龄段置业需求
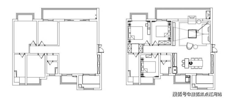
世茂璀璨世家深谙昆明人居痛点,在户型设计上反复打磨、精益求精,打造建面约107-143㎡多元户型,从紧凑实用三房到阔绰改善四房,全面覆盖刚需、改善置业群体,每一款户型都兼顾采光、通风、空间利用率,摒弃不合理格局,打造真正贴合生活的理想居住空间。
1. 建面约107㎡三室两厅两卫:紧凑实用小三房,刚需上车首选

这款小户型堪称刚需上车神器,以小面积实现大三房格局,空间规划精巧细致,无冗余浪费面积,置业总价友好,轻松实现安家昆明的梦想。全明通透户型,南向采光充足,室内常年明亮干爽;餐客一体连通观景阳台,纵向拉伸空间视觉感,小户型也能拥有大格局;双卫配置,主卧独卫保障主人私密,公卫干湿分离,日常使用便捷实用;卧室均带观景飘窗,拓展室内使用空间,兼具实用性与观赏性,刚需自住再合适不过。
2. 建面约128㎡三室两厅两卫:横厅奢阔三房,刚改置业热门

作为项目的明星爆款户型,128㎡横厅三房凭借阔绰空间与优越采光,成为刚改家庭的心头好。约5.6米大横厅设计,打破传统竖厅格局,采光面更广、视野更开阔,客厅既是家庭互动娱乐中心,也是待客社交的体面场所。南向阔景阳台,可随心打造为休闲茶角、绿植花房,居家尽享阳光与美景。厨房紧邻餐厅,上菜动线流畅,居家生活更便捷;主卧套房自带独立卫浴与衣帽间,尊崇感与舒适度拉满;次卧空间规整,可灵活改造为儿童房、书房,适配家庭不同成长阶段的居住需求。
3. 建面约143㎡四室两厅两卫:阔绰改善四居,置业一步到位
这款四室户型专为改善家庭量身打造,大尺度空间规划,尽显奢适居住体验,彻底告别空间局促。全明通透格局,四房布局科学合理,无论是三代同堂阖家居住,还是二胎家庭生活,都能轻松容纳,无需后期换房。餐客大通厅搭配宽景阳台,室内采光通风俱佳,空间感十足;主卧尊享独立卫浴、专属衣帽间,私密感与舒适度拉满;双卫干湿分离设计,家人日常使用互不打扰;灵动空间可改造为书房、健身室、儿童游乐区,满足居家办公、休闲娱乐等多元化生活需求,真正实现改善置业一步到位。
置业建议:昆明世茂璀璨世家集齐品牌实力、实景现房、醇熟配套、优质户型四大核心优势,精装交付省去装修繁琐,实景呈现彻底规避购房风险,无论是刚需自住安家,还是改善置换宜居,都是昆明南市不可错过的优质楼盘,闭眼入不踩雷。
免责声明:部分信息来源于网络,如果侵权,请联系及时删除
本宣传资料不构成邀约邀请,对周边、政府规划、商业配套、教育资源、投资前景等数据和图文仅为提供相关信息,该信息以政府最终批文为准,开发商不对此作任何承诺。买卖双方的权利义务以双方签订的买卖合同约定及附件、实际交付为准,本公司保留对宣传资料修改的权利,敬请留意最新资料。
声明:本文由入驻焦点开放平台的作者撰写,除焦点官方账号外,观点仅代表作者本人,不代表焦点立场。
