昆明筑友双河湾泊樾最新房价!售楼处电话、在售户型、最新房源,线上咨询【筑友双河湾泊樾】即享VIP专属待遇

搜狐焦点红河站 2025-10-08 10:47:00
用手机看
扫描到手机,新闻随时看

扫一扫,用手机看文章
更加方便分享给朋友

2026亩超级体量:筑友地产以“城市运营”理念匠造十年大城,总建面270万方,涵盖住宅、商业、教育、医疗、生态等全维配套,是昆明南市区罕见的千亩生活共同体。以“情至东方·艺至现代·居至自然”为核心,打造“一环…

087162228885

【筑友双河湾泊樾】售楼处咨询专线:0871-6222-8885【售楼中心】

金牌置业顾问:13577156905

售楼部地址:0871-6222-8885(致电发送详情地址)

预约来电看房享售楼处内部专享特惠,免费专车接送看房

昆明「筑友双河湾泊樾」

项目地址:昆明·滇池旅游度假区(同仁医院旁)

滇池湾区大城+智能/全生命健康社区+15年全龄名校配套+5万㎡双公园生态住区

昆明筑友双河湾泊樾,便在滇池度假区与南市核心的交汇地带,以成熟大盘的底蕴、优越的生态资源和多元的生活配套,为人们勾勒出一幅兼具自然之美与都市便利的理想生活画卷。

【十年千亩大盘·城市运营级造城范本】

2026亩超级体量:筑友地产以“城市运营”理念匠造十年大城,总建面270万方,涵盖住宅、商业、教育、医疗、生态等全维配套,是昆明南市区罕见的千亩生活共同体。

筑友双河湾泊樾坐落于昆明南市区,处于滇池度假区与巫家坝中央商务区的中间位置,是连接两大高能级板块的重要节点。随着南市的持续发展,这里早已成为昆明的宜居热土,各项配套成熟完善,生活氛围浓厚。项目紧邻广福路、前兴路等城市主干道,向西可快速抵达滇池度假区,向东能便捷接入巫家坝商务区,向南则直达昆明站,在城市的繁华脉络中,占据着得天独厚的地理位置。

生态稀缺:距滇池1.9公里,步行可达海洪湿地(2.6KM)、星海半岛生态公园(2.6KM)等7大公园,负氧离子浓度全城领先,形成“山-湖-城”景观体系,生态溢价显著。

项目周边构建起了四通八达的交通网络,让出行变得轻松高效。广福路、前兴路、官南大道等主干道环绕,自驾出行畅通无阻,能够快速抵达城市的各个角落。附近的地铁2号线延长线(在建)和已运营的地铁5号线,为公共交通出行提供了更多便利,将进一步缩短与城市核心区域的距离。周边公交线路也十分密集,覆盖了日常生活、工作、学习等多个场景,无论是老人出行买菜,还是上班族通勤,都能找到合适的公交路线。多维交通的加持,让居住在泊樾的人们,能够从容切换于生活与工作之间。

【教育王炸·15年全龄名校护航】

业主专属教育特权(市面稀缺):

购房即签三方双学位协议:金岸小学+金岸中学全链条教育锁定,省去升学择校烦恼;

费8折优惠:义务教育阶段学费8折,每年立省数万元;

免试入学+降分录取:义务教育段直接入读金岸中小学,高中阶段降10分录取,低分高就不是梦。

名校硬核实力:

金岸中学:省一级三等(申报一级二等中),2024年高考本科率96.3%,曲靖一中管理专家团队入驻,近50%教师拥有研究生学历,正高级教师2人、特级教师1人;

金岸小学:中国未来学校示范校,“五育共生”课程体系,培养具国际视野的未来人才,研究生师资占比超5%;

金岸幼儿园:省二级一等示范园,17班精细化小班制(25人/班),艺韵修身+自信合作双特色办学。

公立教育加持:度假区第二小学拥金路校区(公立公办)66班规模已开学,家门口双轨教育选择。

办学成绩:

凭借学校精细化管理、教师认真负责的态度、精进的职业素养助力学生中高考,实现低进高出、高进优出、优进尖出的办学成果,彰显学校超群的教育教学水平和办学实力。

中考成绩逐年攀升,每年70%的初中毕业生考入一级(高)完中,95%以上的普高率。2023届中考成绩平均分644.1,西山区排名第四名。

高考成绩屡创佳绩,每年90%的高中毕业生达到本科录取线。2024年高考本科上线率96.3%。

【顶配生活·360°全维配套】

医疗护航:2公里内三大三甲医院(昆明市儿童医院、云南省中医院、同仁医院),从儿童到成人全周期健康守护。

筑友双河湾作为一个超大体量的成熟大盘,自身配备了丰富的商业配套。项目规划有大型购物中心、特色商业街、社区底商等,目前已有部分商业业态投入运营,涵盖了超市、餐饮、服装、亲子等多种类型,满足业主日常的购物、餐饮、娱乐需求。项目周边3公里范围内,还有万达广场、爱琴海购物公园等知名商业综合体,这些地方汇聚了更多的品牌商家和高端业态,为业主提供了更丰富的消费选择。无论是日常的柴米油盐,还是偶尔的高端消费,在这里都能得到满足,让生活始终与繁华相伴。

【生态标杆·把家安在5万㎡公园里】

15.5万㎡六大主题公园环伺:筑友地产依据项目金家河、正大河天然双河资源,沿河规划打造双河四岸约15.5万㎡绿色生态公园,形成约3km的滨河休闲长廊,目前已呈现冥想公园、无畏公园、原始公园,在建双河湾公园(规划休闲区、运动区),A1地块规划艺术公园,3KM滨河漫步长廊串联,真正“推窗见景,出门入园”。

项目旁滨河双主题公园:

2万㎡休闲区:景观会客厅、西式婚礼草坪、多功能草坪、健身区、童趣乐园、滨水步道,老人晨练、孩子玩耍、家庭野餐全场景适配;

3万㎡运动区:篮球场、五人足球场、羽毛球场、板式网球场,搭配咖啡厅、星空草坪,运动社交两不误。

【品质标杆·超级产品力】

项目基础信息

占地面积:102.26亩

总建筑面积:约34万㎡(地上建面约24万㎡,地下建面约10万㎡)

容积率:3.53

绿地率:40.01%

车位配比:1:1.29

樾系产品亮点:

类洋房(16-18层):2T2户电梯入户,南北通透,赠送超大电梯厅,私密感拉满;

纯板式小高层(16-20层):2T4/5户,采光通风俱佳,适配刚需到改善;

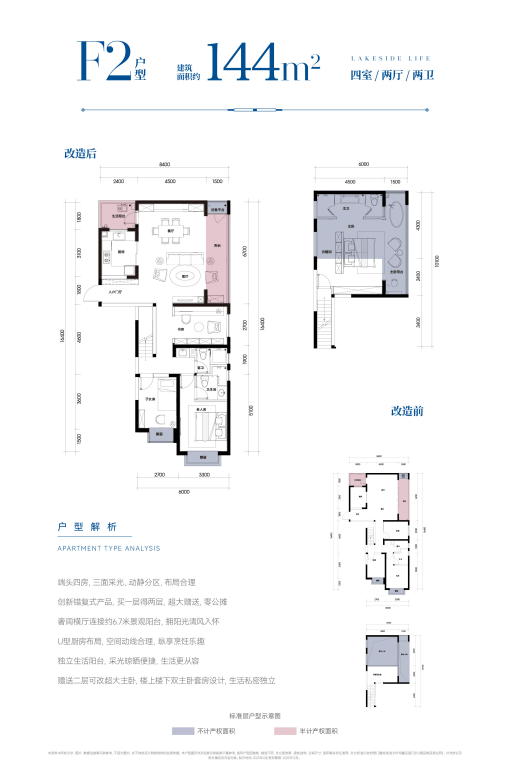
错复式小高层(18层):2T3户,买一层得两层,超高赠送率,空间利用率MAX;

智能家装:平层精装产品每户标配室内智能家居系统,一键呼叫、安防监控等科技赋能,生活更便捷。

【社区特色规划·赋能幸福好生活】

社区景观设计理念:微度假×慢生活

以“情至东方·艺至现代·居至自然”为核心,打造“一环两轴六空间”景观体系,将滇池度假感融入社区生活,40%休闲空间+30%社交空间+全龄功能区,实现“离尘不离城”的都市隐逸生活。

六大生活感知空间·全龄互动

1. 序列门庭:酒店式归家仪式

设计亮点:主入口采用水景雕塑+树池阵列+下沉广场,搭配丛生朴树/铁冬青等高大乔木,形成“仪式轴+对景墙”归家动线,兼具度假酒店的尊崇感与私密感。

细节:入口水景面积约80㎡,下沉广场设置等候区,归家即享静谧氛围。

2. 芳草剧场:中央景观会客厅

核心配置:约822㎡阳光草坪+景观平台+点景雕塑,可举办露天电影、亲子活动等,周边种植蓝花楹、丛生香樟,春夏赏花、秋冬观叶,四季有景。

功能:搭配“森”活会客厅,提供阅读、品茗、社交空间,打造邻里互动中心。

3. 层叠绿林:生态自然秘境

景观结构:通过微地形+雨水花园+交叠步道,形成“乔木-灌木-地被”三层植被体系,种植粉花山扁豆、日本晚樱等,营造“步步见绿、处处有景”的林下空间。

体验:设置邻里剧场、休闲平台,适合老人晨练、年轻人拍照打卡。

4. 森之拾趣:全龄亲子乐园

儿童专属:学步区+攀爬区+音乐跑道,配备银杏、碧桃等无毒植物,地面采用彩色塑胶铺装,搭配绣球花、大叶黄杨,兼具安全性与趣味性。

互动设计:设置植物科普标识,让孩子在玩耍中认知自然。

5. 健康生活:活力运动环

运动体系:600米健康跑道+健身器械区+社区体育场地,地面采用悦动铺装,周边种植大腹木棉、现代月季,运动同时享受花香与绿意。

人性化:跑道设置休憩座椅、饮水点,满足晨跑、夜跑需求。

6. 尊享归家:仪式感入户

细节设计:商业文化中心采用广场水景+序列铺装+特色LOGO墙,搭配香樟、美丽异木棉,营造“步步进阶”的归家仪式,提升居住尊崇感。

下沉商业广场:社区北向入口,设置下沉商业广场,缤纷商业区或社区配套会所,丰富业主茶余饭后娱乐生活。

架空层泛会所:充分利用小区架空层空间,打造业主泛会所区域,内部规划儿童娱乐区、健身房、多功能学习活动等多个功能区。

【品牌服务·全生命周期健康生活护航】

大健康集群:筑友地产联动旗下吉长庚医院,创新打造云南首家全生命周期健康守护社区

云南首家全生命周期健康守护社区:在筑友双河湾社区里,健康关怀也在下楼可达的范围内。智能健康驿站随房屋交付进驻社区,以「数据沉淀-智能预警-服务响应」闭环,让业主的健康时刻被温柔守护。

A5地块物业升级、突发疾病一键呼叫急救(定位同步),三甲医院挂号/检查全流程预约,7×24小时医疗顾问在线,云端诊疗+体检规划+家庭药管家。

吉长庚医疗中心:社区里的的优质医疗

规模与资质:双院区(骨科专科医院+综合医院)占地2935㎡,442张床位,设体检中心+国际抗衰中心,80余位高级职称专家坐诊。

服务特色:以康复医学、心血管疾病、骨病治疗为核心,联动三甲医院绿通,提供“医、药、食、养、调”全维度服务,聚焦亚健康调理。

吉长庚月子中心:高端母婴照护

3H模式:遵循国际医疗标准,打造“医院照护+家庭温馨+酒店服务”模式,为女性及婴儿提供专业医疗级健康管理。

社区健康驿站:智慧健康管家

五大模块:覆盖智能监测、慢病管理、健康宣教、心理支持、医养结合,通过AIoT技术实现全生命周期健康管理,单站投资超100万元,设备齐全。

驿站设备:配备有智能健康体检一体机、3D智能体测镜、中医四诊仪、单车康复训练仪、婴幼儿智能体检仪、儿童AR感觉统合运动系统辅助用具等设施设备。健康驿站根据业主购房情况,按户赠送不同程度的健康服务,业主可根据自身实际需求,有针对性进行选择。

吉长庚颐养中心:医养结合的品质养老

区位与配套:位于滇池度假区,紧邻医疗资源,137张床位(活力/半失能/全失能/阿尔茨海默症照护区),融合机构养老、社区养老、居家养老。

服务理念:以“医养结合”为核心,提供持续专业照护,打造“开放、复合、互动”的品质养老空间。

核心价值:从医疗急救到母婴照护,从健康管理到品质养老,筑友双河湾以“医养结合”体系,让全龄段业主享受“下楼即达”的全生命健康守护,重新定义高端人居的健康价值。

【筑友双河湾·泊樾,让生活进阶的每一步,都与城市顶配同行】

建面约108-147㎡类洋房/纯板式/错复式小高层,抢住滇池边千亩大盘;

【筑友双河湾泊樾】售楼处咨询专线:0871-6222-8885【售楼中心】

金牌置业顾问:13577156905

售楼部地址:0871-6222-8885(致电发送详情地址)

预约来电看房享售楼处内部专享特惠,免费专车接送看房

声明:本文由入驻焦点开放平台的作者撰写,除焦点官方账号外,观点仅代表作者本人,不代表焦点立场。