昆明筑友双河湾泊樾值得买吗?滇池门户错复式高得房率好房推荐(3月最新优惠)
扫描到手机,新闻随时看
扫一扫,用手机看文章
更加方便分享给朋友

筑友双河湾泊樾丨地铁500米丨学区房(具体以售楼处最新消息为准)丨紧邻三甲医院
【项目基础信息】
位置:昆明市西山区滇池旅游度假区,广福路与前兴路交汇处,同仁医院旁;
开发商:云南筑友房地产开发有限公司;
规模:占地102.26亩,总建面约34万㎡(地上 24 万㎡);容积率 3.53,绿地率 40.01%;总户数 1889 户,车位数 2470 个,车位比 1:1.29;
产品:16–20 层纯板式小高层,包含2T2户类洋房、2T4/5户纯板式平层、2T3户错复式;主力户型约108–147㎡(涵盖 3–4房及错复跃层);精装交付,装标约2000元 /㎡;预计2026年底交付;
价格:约11500元/㎡起;
物业费:2.8元/㎡/月;社区标配罗格朗智能屏,联动医疗、物业、家居控制
【适合人群】
适合想在滇池度假区、广福路沿线购置改善型住宅,重视教育资源、生态环境、健康医疗配套,偏好精装+智能家居的购房者;错复式适合追求空间层次感与高赠送的家庭。
【核心配套】
教育:金岸小学+金岸中学15年全龄教育,购房可签双学位协议并享学费优惠;周边有金岸幼儿园、度假区二小;

医疗:紧邻同仁医院,2公里内有昆明市儿童医院、云南省中医院;社区内设吉长庚医疗中心、健康驿站、月子中心,支持一键呼叫急救与三甲绿通;

生态:东侧2万㎡滨河公园+南侧3万㎡运动主题公园(合计5万㎡),距滇池约1.9公里,周边有海洪湿地等多个公园;
商业交通:广福路、前兴路交汇,临近地铁2、5号线(500米);覆盖爱琴海、公园1903、万达等六大商圈;社区自带农贸市场与商业街,规划10万㎡大型商业中心。
【亮点与特点】
住建部 “好房子” 示范项目,工程质量曾获全国住建系统观摩;
全生命周期社区:从母婴照护、儿童教育到老人颐养、智能健康监测全覆盖;
错复式产品赠送率高,得房率最高可达 120%;类洋房 2T2 电梯入户,赠送独立电梯厅;
全屋智能家居,罗格朗智能屏可语音控制家电、呼叫物业 / 急救、预约三甲医院挂号。
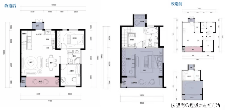
【户型鉴赏】
纯板式平层(精装)
B1 约108㎡3 房2厅2卫(2T4/5,20层)
优点:三开间朝南,U型厨房动线顺;总价门槛低,精装带罗格朗智能系统;适合刚需 / 三口之家;
C1 约125㎡4房2厅2卫(2T4,18–20层)

优点:户型方正,动静分区;约6.2m长阳台贯通客厅与主卧;U 型厨房,四房满足二孩 / 三代同堂;
C3 约126㎡3房2 厅2卫(2T2类洋房,18层,电梯入户)

优点:2T2私密强,赠送独立电梯厅;南北通透纯板;阳台宽敞,主卧套间带飘窗;
D4 约143㎡/D3 约144㎡4房2厅2卫(2T2类洋房,18层,电梯入户)


优点:超大横厅 + 长阳台,南北双阳台;四房全明,主卧套间带独立卫浴与衣帽间;电梯厅赠送,全屋智能精装;
错层复式(2T3,18 层,毛坯)
E 约125㎡3+1房2厅2卫(挑高约5.8m)

优点:买一层得两层,搭板后得房率可达 110%+;动静分层(楼下公区,楼上卧室);
F1约147㎡4房2厅3卫(挑高约5.8m)

优点:超大挑空客厅,搭板后拓展空间约40㎡,得房率可达120%;三卫设计,三代同堂不拥挤;2T3 密度低,景观视野好;
免责声明:部分信息来源于网络,如果侵权,请联系及时删除
本宣传资料不构成邀约邀请,对周边、政府规划、商业配套、教育资源、投资前景等数据和图文仅为提供相关信息,该信息以政府最终批文为准,开发商不对此作任何承诺。买卖双方的权利义务以双方签订的买卖合同约定及附件、实际交付为准,本公司保留对宣传资料修改的权利,敬请留意最新资料。
声明:本文由入驻焦点开放平台的作者撰写,除焦点官方账号外,观点仅代表作者本人,不代表焦点立场。
