2026昆明义承金川府售楼处官方电话(营销中心已认证)|3月最新优惠政策|最新房价与楼盘动态|现房即买即办证物业分红
扫描到手机,新闻随时看
扫一扫,用手机看文章
更加方便分享给朋友
一、项目概况
义承·金川府是义承置业入昆首作,源起浙江的实力房企布局全国二十余个高端项目,本项目以全自有资金打造,无任何开发贷,资金实力雄厚,保障项目稳健运营。项目作为主城墅区孤品,成就西市模范生活圈,现房呈现,即买即住即办证,彻底打消置业顾虑。
二、区位价值
择址高新区与西北新城双区交汇核心,海源北路与西三环交汇处,既能享受高新区多年沉淀的醇熟配套,又能坐享西北新城高速发展的红利,地段优势显著,发展潜力十足。周边商圈、公园、学校、医院等配套齐全,生活便捷度高。

三、交通配套
多维交通网络覆盖,海源北路、西三环等城市干道环绕,快速通达全城各个区域,避开城区拥堵。8条公交线路途经项目周边,日常通勤便捷,地铁4/7号线(规划中)加持,未来交通出行更高效,无论是自驾还是公共交通,都能满足出行需求。

四、生活配套
商业方面,七大商圈汇聚,首创奥特莱斯、宜家购物中心、西城时代、吾悦广场等,吃喝玩乐购一站式满足,10分钟生活圈覆盖日常所有需求。生态方面,六大公园环伺,郊野公园、海源寺公园、翠峰公园等,为业主提供休闲散步的好去处,社区内7.7万方山水园林,打造游历式景观,全冠移植珍贵苗木,居住环境优越。

五、教育医疗
教育配套优质,对口高新一小,学校就在社区旁,实现家校0距离,孩子无需接送,家长更省心。高新一小作为西市优质学校,集团化办学,师资力量雄厚,课程丰富多样,教育质量有保障。医疗方面,多家公立医院环绕,延安医院高新分院、云南省阜外心血管病医院等,为业主健康提供全方位保障。

六、社区与物业
社区容积率仅1.83,低密规划打造舒适居住环境,36栋住宅楼栋布局合理,总户数适中,居住氛围纯粹。配备承义物业,昆明首个不赚钱物业,坚持服务本质,践行社会责任,账本公开透明,更开创物业费年终结余分红机制,首届分红金额可观,业主可按购房面积比例分配,刷新昆明物业服务新高度。
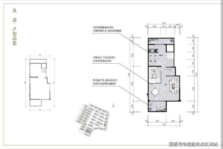
七、产品户型
洋房产品为6-12层纯板楼,1梯2户设计,无连廊,公摊小,得房率高达93-101%,同等面积享受更大空间。户型南北通透,采光通风俱佳,阔景阳台、双飘窗赠送,空间灵活可变,满足不同家庭的居住需求。叠墅产品高拓展,赠送面积大,改造后空间阔绰,打造城芯稀缺墅居体验,无论是改善居住还是资产配置,都是优质选择。
义承·金川府集现房保障、优质配套、低密产品、创新物业于一体,是昆明置业的典范之选,值得重点关注。
想了解项目详情、房源动态、最新优惠、预约看房,可随时咨询:
免责声明:部分信息来源于网络,如果侵权,请联系及时删除
本宣传资料不构成邀约邀请,对周边、政府规划、商业配套、教育资源、投资前景等数据和图文仅为提供相关信息,该信息以政府最终批文为准,开发商不对此作任何承诺。买卖双方的权利义务以双方签订的买卖合同约定及附件、实际交付为准,本公司保留对宣传资料修改的权利,敬请留意最新资料。
声明:本文由入驻焦点开放平台的作者撰写,除焦点官方账号外,观点仅代表作者本人,不代表焦点立场。
