昆明筑友双河湾泊樾怎么样?滇池畔15年名校高赠户型详情
扫描到手机,新闻随时看
扫一扫,用手机看文章
更加方便分享给朋友

筑友双河湾泊樾丨地铁500米丨学区房已签约(具体以售楼处最新消息为准)丨紧邻三甲医院
在昆明南市区,滇池度假区始终是改善置业的心头好,这片兼具生态底蕴与成熟配套的热土,藏着无数人向往的宜居生活。而筑友双河湾泊樾,作为千亩大盘的收官力作,凭借全生命周期配套、硬核产品力,成为片区内不可多得的人居优选,让每一位居者,都能在此邂逅烟火暖意与诗意风光。
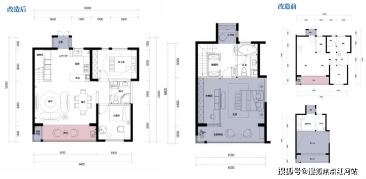
【户型鉴赏】
纯板式平层(精装)
B1 约108㎡3 房2厅2卫(2T4/5,20层)
优点:三开间朝南,U型厨房动线顺;总价门槛低,精装带罗格朗智能系统;适合刚需 / 三口之家;
C1 约125㎡4房2厅2卫(2T4,18–20层)

优点:户型方正,动静分区;约6.2m长阳台贯通客厅与主卧;U 型厨房,四房满足二孩 / 三代同堂;
C3 约126㎡3房2 厅2卫(2T2类洋房,18层,电梯入户)

优点:2T2私密强,赠送独立电梯厅;南北通透纯板;阳台宽敞,主卧套间带飘窗;
D4 约143㎡/D3 约144㎡4房2厅2卫(2T2类洋房,18层,电梯入户)


优点:超大横厅 + 长阳台,南北双阳台;四房全明,主卧套间带独立卫浴与衣帽间;电梯厅赠送,全屋智能精装;
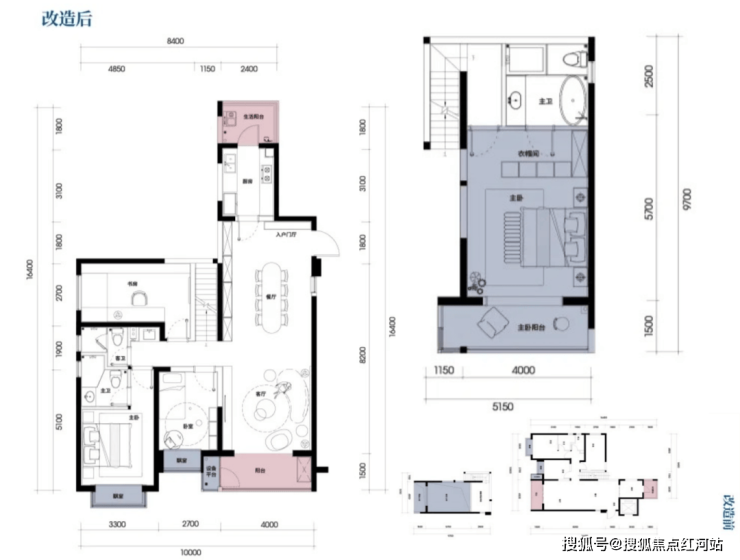
错层复式(2T3,18 层,毛坯)
E 约125㎡3+1房2厅2卫(挑高约5.8m)

优点:买一层得两层,搭板后得房率可达 110%+;动静分层(楼下公区,楼上卧室);
F1约147㎡4房2厅3卫(挑高约5.8m)

优点:超大挑空客厅,搭板后拓展空间约40㎡,得房率可达120%;三卫设计,三代同堂不拥挤;2T3 密度低,景观视野好;
【基本信息】
位置:昆明市西山区滇池旅游度假区,广福路与前兴路交汇处,同仁医院旁;
开发商:云南筑友房地产开发有限公司;
规模:占地102.26亩,总建面约34万㎡(地上 24 万㎡);
容积率:3.53;
绿地率:40.01%;
车位比:1:1.29;
产品:16–20 层纯板式小高层,包含2T2户类洋房、2T4/5户纯板式平层、2T3户错复式;主力户型约108–147㎡(涵盖 3–4房及错复跃层);
交付标准:毛坯/精装交付,装标约2000元/㎡;
交付时间:预计2026年底交付;
价格:约11500元/㎡起;
【顶级配套】
区位交通
滇池度假区门户,广福路 + 前兴路双主轴,地铁2/5号线环伺,纵横全城。
占位南延核心,稀缺土地资源,集生态、文旅、康养于一体,高端宜居标杆。

教育配套
15年全龄名校链,金岸双学位,目送式上学,给孩子最好成长起点。
签约金岸中小学,双学位协议+学费优惠,教育无忧,置业安心

生态健康
5万㎡双公园环伺,推窗见景,出门入园,把家安在公园里。
紧邻同仁医院,2公里内覆盖昆明市儿童医院、云南省中医院,社区内还设有吉长庚医疗中心、健康驿站,一键呼叫急救、对接三甲医院绿通,全方位守护家人健康。
商业配套
爱琴海、公园1903、万达等六大商圈环伺,日常购物、休闲娱乐、美食探店一站式满足,下楼即享社区商业街与农贸市场,柴米油盐的烟火气触手可及,不用远赴闹市,就能解锁便捷生活。
【适合人群】
筑友双河湾泊樾,以稀缺错复产品+全维顶配资源,契合城市精英的改善追求,在滇池度假区的珍贵土地上,打造兼具舒适度、私密性与实用性的品质居所,成为昆明改善置业的不二之选。
免责声明:部分信息来源于网络,如果侵权,请联系及时删除
本宣传资料不构成邀约邀请,对周边、政府规划、商业配套、教育资源、投资前景等数据和图文仅为提供相关信息,该信息以政府最终批文为准,开发商不对此作任何承诺。买卖双方的权利义务以双方签订的买卖合同约定及附件、实际交付为准,本公司保留对宣传资料修改的权利,敬请留意最新资料。
声明:本文由入驻焦点开放平台的作者撰写,除焦点官方账号外,观点仅代表作者本人,不代表焦点立场。
