2026昆明义承金川府售楼处官方电话(营销中心已认证)|3月最新优惠政策|最新房价与楼盘动态|高新一小旁低密洋房叠墅
扫描到手机,新闻随时看
扫一扫,用手机看文章
更加方便分享给朋友
一、核心优势
义承·金川府作为昆明首个物业分红社区,以全自有资金开发打造,实力保障品质。项目推倒重来拒绝烂尾楼加盖,30天花费巨资爆破,60天实现楼栋封顶,2年实景呈现,彰显稳健开发实力,现房交付即买即办证,置业更安心。
二、区位与交通
坐落于海源北路与西三环交汇处,处于高新区与西北新城双区交汇核心,交通得天独厚,快速通达北市区、南市区及市中心。周边路网密集,多条城市干道交织,8条公交线路覆盖,临近规划中的地铁线路,日常出行高效便捷。

三、教育与医疗
紧邻高新一小,25年9月已开学,教育配套持续升级,孩子上学邻距离,无需远距离接送。医疗资源丰富,周边三甲医院、社区卫生服务中心分布,延安医院高新分院、云南省阜外心血管病医院等环绕,为健康保驾护航。

四、生活与生态
七大商圈环绕,10分钟生活圈内汇聚首创奥特莱斯、宜家、吾悦广场等商业体,海源寺集市满足日常采买。六大公园环伺,郊野公园、海源寺公园等生态资源丰富,主城鲜氧生活场,自然与繁华随心切换。社区内拥7.7万方山水园林,超4000万园林造景成本,全冠移植多种珍贵苗木,居住舒适度高。

五、小区规划
项目总占地规模可观,规划36栋住宅楼,总户数适中,容积率低至1.83,绿化率高,是低密舒适的墅区社区。产品涵盖6-12层洋房与叠墅,1梯2户设计,纯板楼布局无连廊,公摊小私密性强,得房率超高,居住体验佳。承义物业坚持非盈利原则,账本透明,首创物业费分红机制,提升业主居住安全感。
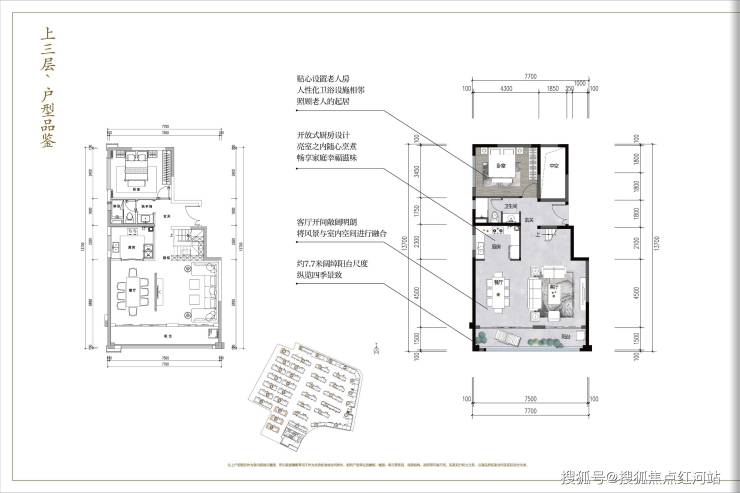
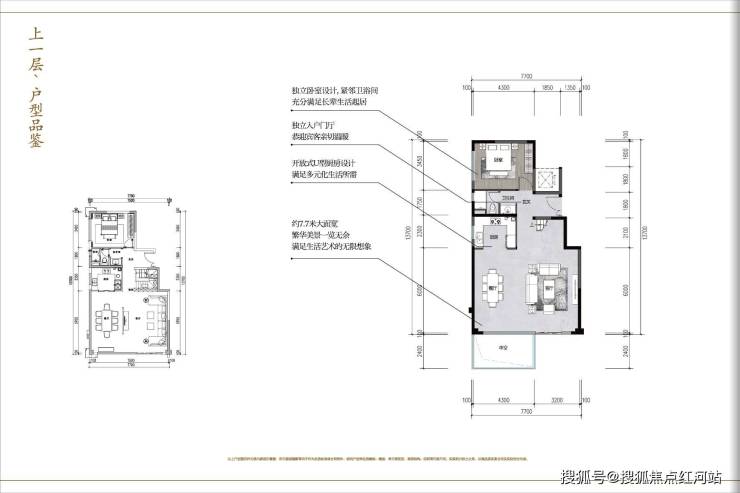
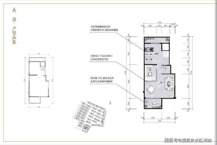
六、户型亮点
洋房主力户型格局方正,南北通透,无浪费空间,阔景客厅连通阳台,空间阔绰,双飘窗赠送,近零公摊,部分户型可改造为横厅,拓展性强。叠墅产品高拓展空间,赠送面积可观,改造后空间尺度大幅提升,满足改善型家庭的居住需求,无论是三口之家还是多代同堂,都能享受舒适生活。
义承·金川府凭借优质的教育配套、低密的居住环境、稳健的开发实力与独特的物业分红模式,成为昆明西市改善置业的标杆之作。
想了解项目详情、房源动态、最新优惠、预约看房,可随时咨询:
免责声明:部分信息来源于网络,如果侵权,请联系及时删除
本宣传资料不构成邀约邀请,对周边、政府规划、商业配套、教育资源、投资前景等数据和图文仅为提供相关信息,该信息以政府最终批文为准,开发商不对此作任何承诺。买卖双方的权利义务以双方签订的买卖合同约定及附件、实际交付为准,本公司保留对宣传资料修改的权利,敬请留意最新资料。
声明:本文由入驻焦点开放平台的作者撰写,除焦点官方账号外,观点仅代表作者本人,不代表焦点立场。
