昆明朗基紫境府售楼部电话|购房政策|特价房源更新|在售户型|最新房价|朗基紫境府楼盘详情

搜狐焦点红河站 2025-10-01 12:51:00
用手机看
扫描到手机,新闻随时看

扫一扫,用手机看文章
更加方便分享给朋友

昆明朗基紫境府位于昆明呈贡大渔片区捞渔河湿地公园对面,占地面积约227亩,容积率1.04,建筑密度28%,绿化率45%,叠墅产品建面约150-300㎡,合院产品建面约330-402㎡,大平层建面约185㎡。地…

087162228885

【朗基紫境府】售楼处电话:0871-6222-8885【售楼中心】

金牌置业顾问:13577156905(微信同步)

售楼中心地址:0871-6222-8885(致电发送详情地址)

看房需提前来电预约登记,享售楼处内部特惠,看房车全程免费接送

昆明「朗基紫境府」

昆明朗基紫境府位于昆明呈贡大渔片区捞渔河湿地公园对面,占地面积约227亩,容积率1.04,建筑密度28%,绿化率45%,叠墅产品建面约150-300㎡,合院产品建面约330-402㎡,大平层建面约185㎡。

朗基集团成立于2005年,总部位于成都,是一家资产规模庞大、企业实力雄厚的房地产集团。集团拥有1000多名全球跨领域专家团队,以房地产为支柱,产业为动力,生活服务为引擎,形成了强大的发展格局。

项目临近地铁1号线,规划中的9号线也将为出行提供更多便利,周边直线1公里内有7个公交站,公共交通较为便捷。

所在的大渔片区内规划有约20余所学校,涵盖了从幼儿园到高中的全龄段教育资源,包括9所幼儿园、6所小学、3所初中和2所高中。项目周边还有长水外国语中学、大渔中学、大渔小学、云大附中呈贡校区等知名学府。

项目自身配套有餐饮服务中心、购物中心等,周边还有冠江旅游小镇、海昌极地海洋公园、华谊兄弟旅游小镇、绿地滇池国际健康城等项目配套的大型商业。

项目周边有昆明医科大学附属医院(云大医院呈贡院区)、昆明市中医院呈贡院区、昆明延安医院呈贡院区等知名医疗机构,项目内部还配套有医疗保健中心。

项目周边有捞渔河湿地公园、大渔公园、梁王河湿地公园三大公园环绕,生态环境极佳。

昆明朗基紫境府凭借其优越的地理位置、稀缺的自然资源、完善的配套以及高品质的产品设计,成为昆明滇池度假区的热门高端项目

平墅

上叠

下叠

A1 建面约356㎡,露台面积约46㎡,可拓展最大面积约535㎡

一层

二层

三层

地下一层

夹层

A2 建面约357㎡,露台面积约45㎡,可拓展最大面积约535㎡

一层

二层

三层

地下一层

夹层

A3 建面约365㎡,露台面积约50㎡,可拓展最大面积约546㎡

一层

二层

三层

地下一层

夹层

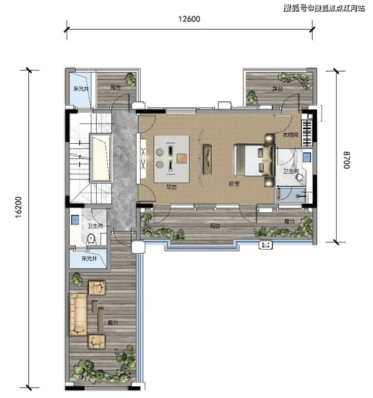
B1 建面约401㎡,露台面积约56㎡,可拓展最大面积约617㎡

一层

二层

三层

地下一层

夹层

B2 建面约402㎡,露台面积约56㎡,可拓展最大面积约617㎡

一层

二层

三层

地下一层

夹层

C1 建面约330㎡,露台面积约48㎡,可拓展最大面积约492㎡

一层

二层&三层

地下一层&夹层

C2 建面约340㎡,露台面积约47㎡,可拓展最大面积约503㎡

一层

二层&三层

地下一层&夹层

D1 建面约356㎡,露台面积约56㎡,可拓展最大面积约528㎡

一层

二层

三层

地下一层

夹层

【朗基紫境府】售楼处电话:0871-6222-8885【售楼中心】

金牌置业顾问:13577156905(微信同步)

售楼中心地址:0871-6222-8885(致电发送详情地址)

看房需提前来电预约登记,享售楼处内部特惠,看房车全程免费接送

087162228885

声明:本文由入驻焦点开放平台的作者撰写,除焦点官方账号外,观点仅代表作者本人,不代表焦点立场。