招商依云国际社区位于昆明官渡区空港经济区嵩昆大道与哨关大道交汇处东,总占地面积约1690亩,总建面约248万方,共由26个不同属性的地块组成。昆明招商依云国际社区,以品牌的实力、区位的优势、完善的配套、匠心的…
087163630707
【招商依云国际社区】售楼处电话:0871-6363-0707【售楼中心】
金牌置业顾问:13577156905
售楼中心地址:0871-6363-0707(致电发送详情地址)
预约来电看房享售楼处内部专享特惠,免费专车接送看房

昆明「招商依云国际社区」
项目详情
占地面积:1690亩
建筑面积:约248万方
产权年限:70年
绿化率:40%
容积率:3.93
交房标准:高层洋房:精装;合院叠拼:毛坯

招商依云国际社区位于昆明官渡区空港经济区嵩昆大道与哨关大道交汇处东,总占地面积约1690亩,总建面约248万方,共由26个不同属性的地块组成。

项目拥有“一港二铁六路两轨”的交通网络,“一港”为昆明长水国际机场;“二铁”为沪昆高铁、渝昆高铁;“六路”为杭瑞高速、嵩昆大道、空港大道、绕城高速、嵩昆高速、320国道;“两轨”为新区轨道2号线以及嵩明线。项目内部还有6条主干道,分别为沐春大道、栖夏大道、颂秋大道、吟霜大道、彩韵大道、渲花大道。

项目规划有一座三甲综合医院与一座康养医院,还将打造一座健康养老中心,涵盖养老及1000平的老年俱乐部。招商美伦健康中心已投入运营,为业主提供健康咨询、检测、体测等服务。

项目自带大规模商业综合体,规划有国际五星级酒店,国际高端公寓,配有三大商圈+一条主题商业街,形成项目独有的商业环。

项目内部规划有6所幼儿园,2所小学,1所30班中学,形成从幼儿园到初中一站式教育体系,预计引入优质教育资源。

昆明招商依云国际社区,以品牌的实力、区位的优势、完善的配套、匠心的产品和贴心的服务,成就昆明理想人居的典范之作。在这里,您可以拥抱城市的繁华,也能享受自然的宁静;可以体验智慧生活的便捷,也能感受邻里之间的温暖。



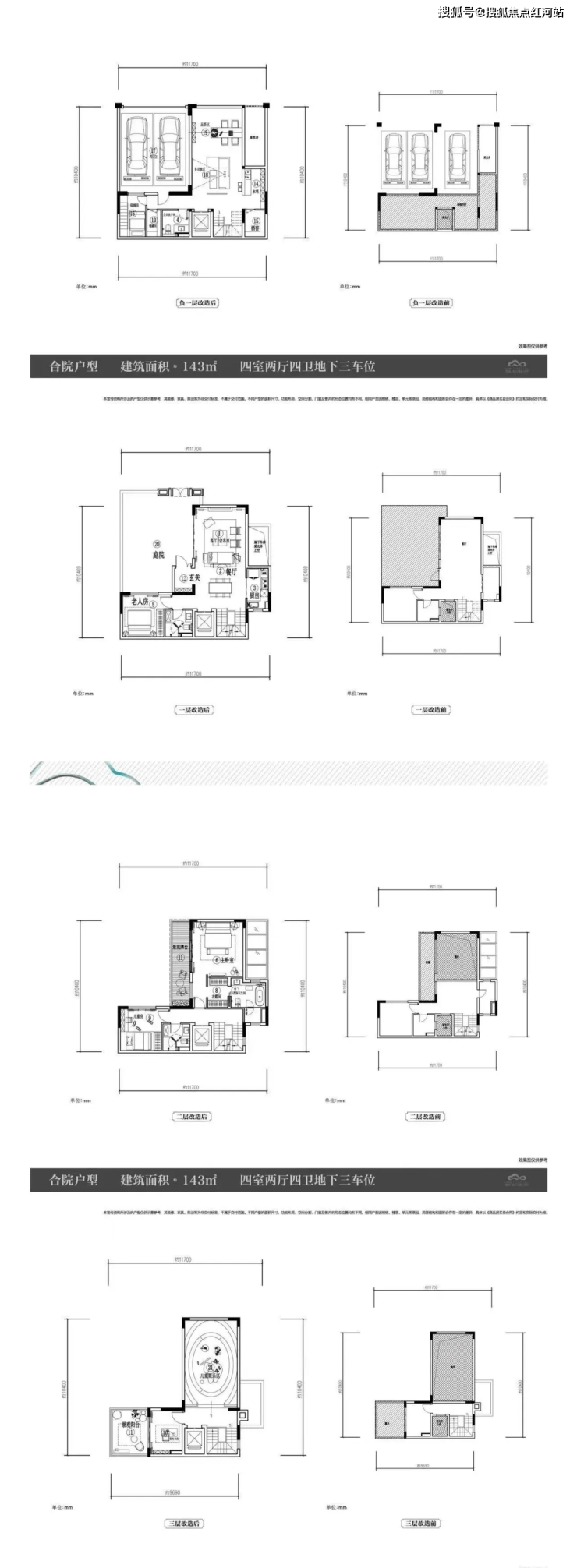
合院户型

【招商依云国际社区】售楼处电话:0871-6363-0707【售楼中心】
金牌置业顾问:13577156905
售楼中心地址:0871-6363-0707(致电发送详情地址)
预约来电看房享售楼处内部专享特惠,免费专车接送看房
087163630707