昆明万科都会半岛售楼处电话|最新房价|在售户型|项目优惠|楼盘详情

搜狐焦点红河站 2025-11-15 13:51:00
用手机看
扫描到手机,新闻随时看

扫一扫,用手机看文章
更加方便分享给朋友

昆明万科都会半岛是位于官渡区珥季路南段西亮塘湿地公园旁的品质楼盘。项目汇集昆明同仁医院、昆明市儿童医院等三所三级甲等医院,一所三级专科医院(中德骨科医院),一所二级甲等医院(昆明市第一人民医院星耀医院),为业…

087162228885

售楼处咨询专线:0871-6222-8885【售楼中心】

金牌置业顾问:13577156905

售楼部地址:0871-6222-8885(致电发送详情地址)

预约来电看房享售楼处内部专享特惠,免费专车接送看房

万科都会半岛

昆明万科都会半岛是位于官渡区珥季路南段西亮塘湿地公园旁的品质楼盘。将都市的繁华与生活的静谧巧妙融合,为春城人民打造了一处兼具品质与温度的理想居所,成为巫家坝片区宜居生活的新标杆。

项目周边道路交通系统由三横六纵一斜组成。三横为环湖东路、南绕城高速、广福路;六纵为金湖路、福保路、飞虎大道—会展西路等;一斜为彩云北路,可通往昆明各个角落。周边直线3km范围内有宝丰、滇池国际会展中心2个地铁站,距离最近的是宝丰站,轨道交通发达。片区内有10条公交线路,周边直线1km内有8个公交站,可直达昆明南站、南亚风情园、海埂公园等地。

项目汇集昆明同仁医院、昆明市儿童医院等三所三级甲等医院,一所三级专科医院(中德骨科医院),一所二级甲等医院(昆明市第一人民医院星耀医院),为业主健康保驾护航。

项目自身规划有约1.5万㎡的社区商业,周边有银海・清溪渡购物公园、王府井奥莱・滇池小镇、海乐城等5个商场,可满足日常购物需求。

项目已签约云附星耀集团,引入星耀龙马小学和官一中云秀本部,形成九年公立公办教育体系。直线3km范围内还有昆明市官渡区萃智海伦学校、官渡区古镇第一小学等多所小学,以及昆明市第十二中学(环湖校区)、云南师范大学附属官渡中学等中学。

昆明万科都会半岛,凭借其在巫家坝核心区的优越区位、完善的全维配套、低密舒适的社区环境、优质的产品与贴心的物业服务,成为巫家坝片区宜居生活的典范。如果您渴望在城市新中心拥有一处高品质的理想家园,万科都会半岛无疑是您的不二之选。

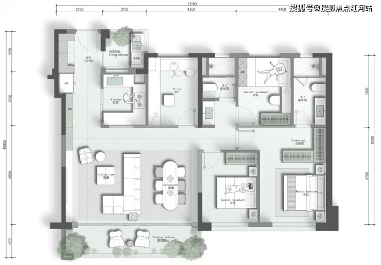
【超能装】82㎡天赋三居

【超多变】89㎡理想三居

【超能聚】97-100㎡1.5厅理想派对3+X

【超多房】126㎡大横厅4+2X会生长的空间

售楼处咨询专线:0871-6222-8885【售楼中心】

金牌置业顾问:13577156905

售楼部地址:0871-6222-8885(致电发送详情地址)

预约来电看房享售楼处内部专享特惠,免费专车接送看房

087162228885

声明:本文由入驻焦点开放平台的作者撰写,除焦点官方账号外,观点仅代表作者本人,不代表焦点立场。