2026昆明世茂璀璨世家官方售楼部咨询电话(官方认证)|3月最新优惠|2T4户通透 高标精装 世茂物业|营销中心官网
扫描到手机,新闻随时看
扫一扫,用手机看文章
更加方便分享给朋友
品质人居细节拉满!世茂璀璨世家打造2梯4户南向板宅,全屋一线品牌精装,搭配全国TOP12世茂物业,从居住格局到物业服务,全方位提升居住体验,兑现品质生活。
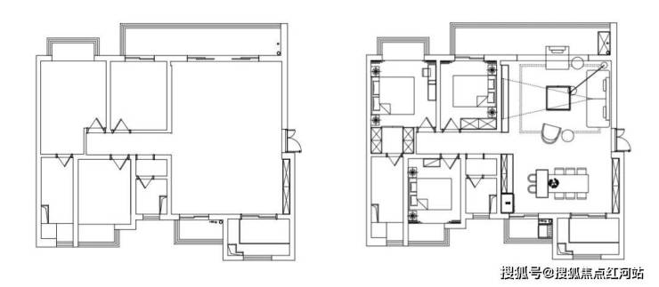
一、南向通透板宅,舒适格局
2梯4户梯户比,公摊合理、出行便捷,户户南向/东南向朝向,全明通透格局,采光通风俱佳。建面约111㎡三室两卫、143㎡三室两卫户型,空间方正无浪费,动静分区合理,满足三口之家、多代同堂居住需求。
二、高标品牌精装,省心入住

2500元/㎡高标准精装,甄选方太、科勒、罗格朗、圣象等一线家装品牌,所有品牌型号全部写入合同,品质有保障。打造100+严苛精装细节,入户挂钩、红外线感应灯等贴心设计,从入户到居家,每一处都尽显用心,交房即享品质生活。
三、星级物业护航,安心居住
全国物业TOP12世茂物业,物业费仅2.7元/㎡/月,秉持安心、贴心、智慧、多元的服务理念,斩获多项物业服务大奖。24小时安保、精细化保洁、专属管家服务,为业主保驾护航,营造温馨舒适的社区氛围。
四、3月户型特惠
建面约111㎡三室两厅两卫:刚需爆款户型,高性价比之选

建面约128㎡三室两厅两卫:端头横厅户型,采光视野双优

建面约143㎡四室两厅两卫:全明改善户型,阖家宜居首选
3月户型专属让利,通透板宅+品牌精装+星级物业,南市改善房源稀缺,速致电预约。
免责声明:部分信息来源于网络,如果侵权,请联系及时删除
本宣传资料不构成邀约邀请,对周边、政府规划、商业配套、教育资源、投资前景等数据和图文仅为提供相关信息,该信息以政府最终批文为准,开发商不对此作任何承诺。买卖双方的权利义务以双方签订的买卖合同约定及附件、实际交付为准,本公司保留对宣传资料修改的权利,敬请留意最新资料。
声明:本文由入驻焦点开放平台的作者撰写,除焦点官方账号外,观点仅代表作者本人,不代表焦点立场。
