2026昆明世茂璀璨世家营销中心官网|3月最新房源|南市巫家坝|南向精装现房|世茂璀璨世家售楼部官方电话
扫描到手机,新闻随时看
扫一扫,用手机看文章
更加方便分享给朋友
想置业昆明南市核芯,既要现房安心、精装省心,又要地段优越、配套成熟,世茂璀璨世家就是刚需优选!全国八强世茂集团匠造,占位巫家坝先享区,177亩醇熟大城实景呈现,2梯4户南向板宅,111-143㎡精装三房在售,2500元/㎡精装标准写进合同,已交付即买即住,南市核芯置业首选,本篇全方位拆解项目硬核实力。

一、项目基础信息:南市大城 精装现房
世茂璀璨世家坐落官渡自贸区官南大道中段,康乐茶城旁,总占地177亩,在售A10地块占地51亩,容积率3.86,绿地率41%。楼栋总高26-34层,2T4户梯户比,南向/东南向采光,70年住宅产权,2500元/㎡精装交付(品牌型号写入合同),目前5#、7#楼已交付,实景现房在售,世茂TOP12物业保驾护航,物业费2.7元/㎡/月。

二、核心区位:巫家坝先享区 立体交通
项目雄踞南市几何中芯,占据万达、会展、巫家坝三大板块中轴,坐享自贸区发展红利,巫家坝先享区配套提前兑现;坐拥三横三纵一轨立体路网,距离在建地铁2号线小街站约500米,快速通达全城,出行便捷不堵车,地段价值潜力无限。

三、全维配套:衣食住行 全龄覆盖
项目坐拥南市成熟配套,生活无忧:商业配套毗邻爱琴海、万达、南亚五大商圈,距玫瑰湾金街仅500米,日常消费举步即达;教育配套片区规划10所幼儿园、5所小学、4所初中,15年全龄教育护航;医疗配套6大医院环伺,距三甲同仁医院仅3公里,健康有保障;生态配套距巫家坝5070亩中央公园约900米,周边多所市政公园环绕,鲜氧宜居。

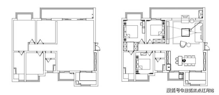
四、户型鉴赏:南向板宅 高实得空间
项目主打111-143㎡三房户型,纯南向/东南向采光,全明通透:111㎡三室两厅两卫,格局紧凑无浪费,刚需首选;143㎡三室两厅两卫,空间朗阔,改善宜居;全系户型动静分区、明厨明卫,观景阳台采光充足,居住舒适度拉满。
1. 建面约111㎡三室两厅两卫:刚需爆款户型,高性价比之选

这款户型是刚需家庭的首选,整体格局周正,南向通透设计,采光通风效果拉满,告别阴暗潮湿。做到标准三室两厅两卫,空间规划零浪费,每一寸面积都物尽其用。动静分区合理,休憩区与活动区完全分隔,日常居家互不干扰,起居更静谧。主卧配套独立卫浴,保障主人私密生活;双卫设计,完美化解早高峰洗漱拥堵难题,大幅提升居住幸福感。餐客一体连通观景阳台,纵向延展视觉空间,室内更显开阔敞亮,三口之家居住温馨舒适,年轻人首次置业也无压力。
2. 建面约128㎡三室两厅两卫:端头横厅户型,采光视野双优

作为项目端头爆款户型,128㎡三房采用约5.6米大横厅设计,采光面全面拓宽,室内通透明亮,窗外视野无遮挡。全明格局搭配南向阔景阳台,清风穿堂而过,四季鲜氧萦绕,居家尽享自然惬意。U型厨房布局,洗、切、炒、煮动线流畅,下厨操作一气呵成,轻松解锁居家美味。主卧套房设计,自带观景飘窗与独立卫浴,兼具舒适度与私密性;次卧空间宽敞规整,可灵活打造为儿童房、老人房,适配家庭不同阶段需求,适合追求品质生活的刚改家庭。
3. 建面约143㎡四室两厅两卫:全明改善户型,阖家宜居首选
这款四室户型是改善家庭的一步到位之选,大面宽、短进深设计,全屋全明通透,空间阔绰不压抑。四房格局规划科学合理,可轻松容纳三代同堂,老人房、儿童房、书房、客房一应俱全,兼顾日常生活、休闲娱乐与居家办公。餐客大通厅设计,搭配阔景阳台,既是家人休闲互动的核心区,也是待客会友的社交场。双卫干湿分离设计,日常使用便捷卫生,细节之处尽显人居匠心,无需后期换房,实现改善置业一步到位。
五、置业优势:现房精装 省心首选
世茂璀璨世家为全国八强房企匠造,品牌实力雄厚;已实景交付,现房即买即住,无延期烂尾风险;2500元/㎡精装标准,方太、科勒等品牌加持,省心省力;41%高绿地率+活力园林,全龄休闲空间规划;3月限时特惠,低门槛入手南市精装现房,房源分秒递减。
刚需买房选现房,首选世茂璀璨世家!南市核芯+巫家坝旁+南向精装+全维配套,3月特惠力度空前,优质房源速来抢占,实地考察满意再下单。
免责声明:本文内容仅为房产信息分享,部分素材来源于网络,如有侵权请联系删除。本宣传资料不构成要约邀请,周边规划、配套、学区等信息以政府最终批文及双方买卖合同为准,开发商保留最终解释权。
声明:本文由入驻焦点开放平台的作者撰写,除焦点官方账号外,观点仅代表作者本人,不代表焦点立场。
