昆明招商依云国际社区最新消息|24小时咨询电话|招商依云国际社区售楼处|最新房价|在售户型

搜狐焦点红河站 2025-11-18 09:33:00
用手机看
扫描到手机,新闻随时看

扫一扫,用手机看文章
更加方便分享给朋友

招商依云国际社区自带大规模商业综合体,规划打造集购物、餐饮、娱乐、休闲于一体的一站式消费目的地。项目周边多个成熟商圈环伺,进一步丰富您的消费选择,让繁华触手可及,为您的生活增添无限精彩。昆明招商依云国际社区,…

087163630707

【招商依云国际社区】售楼处电话:0871-6363-0707【售楼中心】

金牌置业顾问:13577156905

售楼中心地址:0871-6363-0707(致电发送详情地址)

预约来电看房享售楼处内部专享特惠,免费专车接送看房

昆明「招商依云国际社区」

项目详情

占地面积:1690亩

建筑面积:约248万方

产权年限:70年

绿化率:40%

容积率:3.93

交房标准:高层洋房:精装;合院叠拼:毛坯

招商依云国际社区宛如一颗璀璨新星,强势崛起。这是招商蛇口精心雕琢的匠心之作,以卓越的品牌实力为基石,依托区域的无限潜力,融合完善的配套设施与匠心独运的产品,致力于为春城人民打造一个集繁华与宁静、品质与舒适于一体的理想生活城邦,开启昆明人居的崭新篇章。

项目雄踞滇中新区小哨国际新城的核心区域,这片被时代赋予重任的热土,正焕发出蓬勃的发展活力。形成“一港二铁六路两规”的超级立体交通网络,15分钟空港大道联通机场,沪昆、渝昆多条高铁交汇,20分钟即可抵达高铁站。规划中的嵩明线、新区轻轨2号线,未来将无缝接驳昆明主城区,以小哨新区为原点,打造环滇中新区的30分钟滇中环线带。

项目周边医疗配套完善。三甲医院、专科医院距离项目不远,专业的医疗团队、先进的诊疗设备,能够为您和家人提供全方位、全周期的医疗服务。无论是日常体检、疾病预防,还是突发疾病的救治,都能在短时间内得到及时有效的治疗。社区内还配备了社区卫生服务中心,提供基本医疗服务和健康管理,让健康关怀时刻相伴,为您和家人的健康生活保驾护航,让您无后顾之忧地享受美好生活。

招商依云国际社区自带大规模商业综合体,规划打造集购物、餐饮、娱乐、休闲于一体的一站式消费目的地。这里将汇聚国内外知名品牌,涵盖时尚潮流服饰、高端美妆护肤、特色美食餐饮、大型影院等多元业态,满足您对品质生活的所有想象。无论是周末与家人朋友的购物狂欢,还是下班后的休闲娱乐,即可享受繁华便捷的都市生活。项目周边多个成熟商圈环伺,进一步丰富您的消费选择,让繁华触手可及,为您的生活增添无限精彩。

项目深知教育对于孩子成长的重要性,携手名校,打造全龄段优质教育体系。社区内配建的昆明西南联大研究院附属学校依云小学已正式开学。学校承袭百年西联教育品牌,拥有优越的教育设施和雄厚的师资力量,构建多元化课程体系,为孩子的成长提供了坚实保障。从幼儿园到小学,一站式优质教育服务,让家长轻松实现 “目送式” 教育,陪伴孩子茁壮成长,为孩子的未来奠定坚实基础。

昆明招商依云国际社区,以品牌的实力、区位的优势、完善的配套、匠心的产品和贴心的服务,成就昆明理想人居的典范之作。在这里,您可以拥抱城市的繁华,也能享受自然的宁静;可以体验智慧生活的便捷,也能感受邻里之间的温暖。

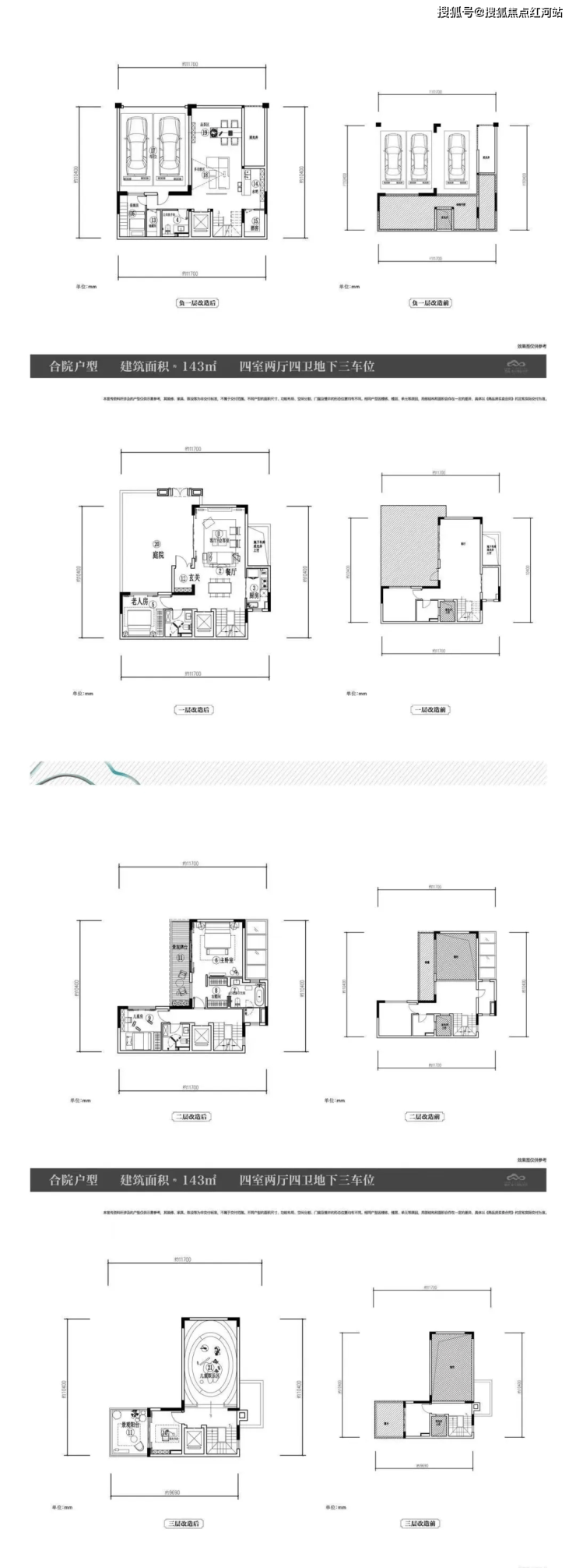
合院户型

【招商依云国际社区】售楼处电话:0871-6363-0707【售楼中心】

金牌置业顾问:13577156905

售楼中心地址:0871-6363-0707(致电发送详情地址)

预约来电看房享售楼处内部专享特惠,免费专车接送看房

087163630707

声明:本文由入驻焦点开放平台的作者撰写,除焦点官方账号外,观点仅代表作者本人,不代表焦点立场。