昆明汉华天马山国际温泉度假区,正是这样一个理想之所,它宛如一颗璀璨的明珠,镶嵌在昆明的西北片区,以其得天独厚的自然环境、匠心独运的规划设计和丰富多元的配套设施,为人们勾勒出一幅诗意的生活画卷,开启一场远离尘嚣…
087163630707
售楼中心24小时电话:0871-6363-0707【营销中心】
置业顾问:13577156905(微信同步)
现场详细解答丨在售户型丨最新房源丨特价房丨最新房价丨周边配套
温馨提示:看房请提前来电预约,全程免费专车接送,谢谢配合!(中介勿扰)

汉华天马山国际温泉度假区
项目情况
占地面积:10400亩
建筑面积:66369㎡
容积率:1.19
绿化率:40.1%
产权年限:70年
交付标准:毛坯、精装

昆明汉华天马山国际温泉度假区,正是这样一个理想之所,它宛如一颗璀璨的明珠,镶嵌在昆明的西北片区,以其得天独厚的自然环境、匠心独运的规划设计和丰富多元的配套设施,为人们勾勒出一幅诗意的生活画卷,开启一场远离尘嚣、亲近自然的美好旅程。

汉华集团将目光投向了昆明,择址天马山,立志打造一座集康养、旅游、休闲、度假于一体的国际温泉度假区,为昆明人民乃至全国的游客带来全新的生活体验。秉持着对品质的严苛要求和对细节的极致把控,汉华集团汇聚业内顶尖团队,从项目的规划设计到施工建设,每一个环节都精雕细琢,力求将汉华天马山国际温泉度假区打造成行业的标杆之作,为业主们构筑一个温馨、舒适、高品质的理想家园。

汉华天马山国际温泉度假区虽然地处自然山水之间,但交通却十分便捷。项目距离昆明市区很近,多条城市主干道与度假区相连,让你在享受宁静生活的同时,也能轻松畅达城市的各个角落。无论是日常出行还是周末出游,都能让你感受到便捷与高效。

汉华天马山国际温泉度假区拥有天然的温泉资源,富含多种对人体有益的矿物质和微量元素。度假区精心打造了凌崖汤泉,让你在享受温泉滋养的同时,还能欣赏到绝美的山间景色。在寒冷的冬日,泡在温暖的温泉池中,让温热的泉水包裹着身体,感受着疲惫一点点消散,抬头仰望,是湛蓝的天空和连绵的山峦,身心都得到了极大的放松与满足。

度假区还提供了丰富的休闲娱乐设施。童梦乐园里,孩子们可以尽情玩耍,享受快乐的童年时光;赛车场则为热爱速度与激情的人们提供了一个释放自我的舞台;户外运动营地,让你在亲近自然的同时,挑战自我,超越极限。此外,度假区内还有电影院、KTV 等娱乐场所,满足你不同的娱乐需求,让你的假期生活丰富多彩。

度假区内汇聚了各地美食,无论是精致的中餐、美味的西餐,还是特色的云南小吃,都能在这里找到。白云生餐厅、伴山咖啡厅等餐饮场所,为你提供了丰富多样的美食选择。在品尝美食的同时,还能欣赏到美丽的自然风光,让你的用餐体验更加愉悦。无论是与家人朋友共享丰盛的晚餐,还是在午后享受一杯香醇的咖啡,这里都是绝佳的选择。

昆明汉华天马山国际温泉度假区,是汉华集团献给昆明的一份厚礼,它将自然之美与人文之韵完美融合,为人们打造了一个繁华外的诗意桃源。在这里,你可以远离城市的喧嚣,拥抱大自然的宁静与美好;可以与家人朋友一起,共享欢乐时光,感受生活的无限乐趣;可以在温泉中放松身心,在美食中品味人生,在休闲娱乐中释放自我。

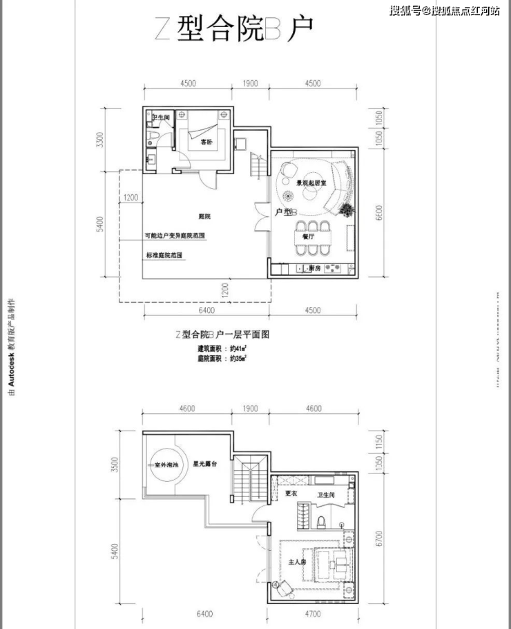
C1户型(下叠,83平,赠送后实得130平左右)

C2户型(上叠,138平,赠送后实得280平左右)



D1户型(86平,赠送后实得130平左右)

D2(上叠137平,赠送后实得200平左右)






售楼中心24小时电话:0871-6363-0707【营销中心】
置业顾问:13577156905(微信同步)
现场详细解答丨在售户型丨最新房源丨特价房丨最新房价丨周边配套
温馨提示:看房请提前来电预约,全程免费专车接送,谢谢配合!(中介勿扰)
087163630707