昆明万科都会半岛位于官渡区会展片区珥季路南段西亮塘湿地公园旁,总占地面积约70亩,总建筑面积约18.10万平,容积率2.8,绿化率40.01%。项目周边交通路网发达,有环湖东路、广福路等三横,以及珥季路、云秀…
087162228885
【万科都会半岛】售楼处电话:0871-6222-8885(售楼中心)
置业顾问:13577156905(微信同步)
楼盘详情介绍丨最新售价丨户型鉴赏丨周边配套丨在线咨询
如需了解最新房源信息_咨询优惠政策_请拨打上方售楼部电话!

昆明「万科都会半岛」
昆明万科都会半岛位于官渡区会展片区珥季路南段西亮塘湿地公园旁,总占地面积约70亩,总建筑面积约18.10万平,容积率2.8,绿化率40.01%。

项目周边交通路网发达,有环湖东路、广福路等三横,以及珥季路、云秀路等三纵。临近地铁5号线宝丰站,距离约1KM;地铁2号线延长线会展中心站(建设中)约1KM;轨道交通12号线和R线南北快线(规划中)罗衙站约300米。此外,Z96路,255路等公交线路经过,出行较为便捷。

项目旁规划52.54亩医院用地,10分钟内可到达昆明市妇幼保健院(三甲医院),省中医医院(滇池院)、市儿童医院等 6大城市二/三甲医院环伺,可为业主健康保驾护航。

项目自带约2400平的半岛小篆街,规划有25个商铺,目前已引入漫咖啡、万逸之家等。周边还有银海・清溪渡购物公园、王府井奥莱・滇池小镇、海乐城等购物中心,可满足日常购物、休闲需求。

项目已签约云附星耀集团,星耀龙马小学已正式授牌,业主可凭购房合同让孩子就读官渡一中(初中部),享受优质九年公立公办教育。直线3km范围内还有官渡区古镇第一小学、昆明市第十二中学(环湖校区)等众多学校。

万科都会半岛凭借其优越的地理位置、丰富的配套以及高品质的产品设计,适合追求性价比和高品质生活的购房者。项目周边的教育、商业和生态资源丰富,适合有子女教育需求和注重生活品质的家庭。

【超能装】82㎡天赋三居

【超多变】89㎡理想三居

【超能聚】97-100㎡1.5厅理想派对3+X

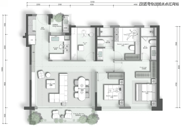
【超多房】126㎡大横厅4+2X会生长的空间

【万科都会半岛】售楼处电话:0871-6222-8885(售楼中心)
置业顾问:13577156905(微信同步)
楼盘详情介绍丨最新售价丨户型鉴赏丨周边配套丨在线咨询
如需了解最新房源信息_咨询优惠政策_请拨打上方售楼部电话!