秉持着对品质的严苛要求和对细节的极致把控,汉华集团汇聚业内顶尖团队,从项目的规划设计到施工建设,每一个环节都精雕细琢,力求将汉华天马山国际温泉度假区打造成行业的标杆之作,为业主们构筑一个温馨、舒适、高品质的理…
087163630707
【汉华天马山国际温泉度假区】售楼处电话:0871-6363-0707【售楼中心】
金牌置业顾问:13577156905
售楼中心地址:0871-6363-0707(致电发送详情地址)
预约来电看房享售楼处内部专享特惠,免费专车接送看房

昆明【汉华天马山国际温泉度假区】
项目情况
占地面积:10400亩
建筑面积:66369㎡
容积率:1.19
绿化率:40.1%
产权年限:70年
交付标准:毛坯、精装

在城市的喧嚣与忙碌中,我们都渴望寻得一处宁静之地,能让心灵得到栖息,让生活回归本真。昆明汉华天马山国际温泉度假区,正是这样一个理想之所,它宛如一颗璀璨的明珠,镶嵌在昆明的西北片区,以其得天独厚的自然环境、匠心独运的规划设计和丰富多元的配套设施,为人们勾勒出一幅诗意的生活画卷,开启一场远离尘嚣、亲近自然的美好旅程。

汉华集团将目光投向了昆明,择址天马山,立志打造一座集康养、旅游、休闲、度假于一体的国际温泉度假区,为昆明人民乃至全国的游客带来全新的生活体验。秉持着对品质的严苛要求和对细节的极致把控,汉华集团汇聚业内顶尖团队,从项目的规划设计到施工建设,每一个环节都精雕细琢,力求将汉华天马山国际温泉度假区打造成行业的标杆之作,为业主们构筑一个温馨、舒适、高品质的理想家园。

汉华天马山国际温泉度假区虽然地处自然山水之间,但交通却十分便捷。项目距离昆明市区很近,多条城市主干道与度假区相连,让你在享受宁静生活的同时,也能轻松畅达城市的各个角落。无论是日常出行还是周末出游,都能让你感受到便捷与高效。

汉华天马山国际温泉度假区拥有天然的温泉资源,富含多种对人体有益的矿物质和微量元素。度假区精心打造了凌崖汤泉,让你在享受温泉滋养的同时,还能欣赏到绝美的山间景色。在寒冷的冬日,泡在温暖的温泉池中,让温热的泉水包裹着身体,感受着疲惫一点点消散,抬头仰望,是湛蓝的天空和连绵的山峦,身心都得到了极大的放松与满足。

除了温泉和美食,度假区还提供了丰富的休闲娱乐设施。童梦乐园里,孩子们可以尽情玩耍,享受快乐的童年时光;赛车场则为热爱速度与激情的人们提供了一个释放自我的舞台;户外运动营地,让你在亲近自然的同时,挑战自我,超越极限。此外,度假区内还有电影院、KTV 等娱乐场所,满足你不同的娱乐需求,让你的假期生活丰富多彩。

度假区内汇聚了各地美食,无论是精致的中餐、美味的西餐,还是特色的云南小吃,都能在这里找到。白云生餐厅、伴山咖啡厅等餐饮场所,为你提供了丰富多样的美食选择。在品尝美食的同时,还能欣赏到美丽的自然风光,让你的用餐体验更加愉悦。无论是与家人朋友共享丰盛的晚餐,还是在午后享受一杯香醇的咖啡,这里都是绝佳的选择。

昆明汉华天马山国际温泉度假区,是汉华集团献给昆明的一份厚礼,它将自然之美与人文之韵完美融合,为人们打造了一个繁华外的诗意桃源。在这里,你可以远离城市的喧嚣,拥抱大自然的宁静与美好;可以与家人朋友一起,共享欢乐时光,感受生活的无限乐趣;可以在温泉中放松身心,在美食中品味人生,在休闲娱乐中释放自我。选择汉华天马山国际温泉度假区,就是选择一种高品质、有温度的生活方式,开启一段属于你的美好生活新征程。

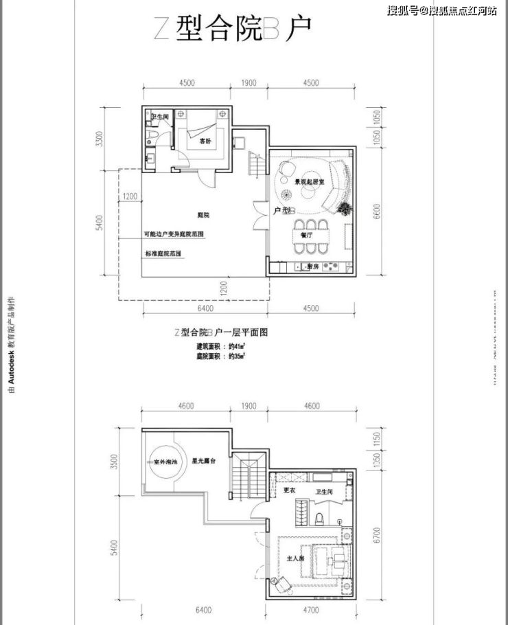
C1户型(下叠,83平,赠送后实得130平左右)

C2户型(上叠,138平,赠送后实得280平左右)



D1户型(86平,赠送后实得130平左右)

D2(上叠137平,赠送后实得200平左右)






【汉华天马山国际温泉度假区】售楼处电话:0871-6363-0707【售楼中心】
金牌置业顾问:13577156905
售楼中心地址:0871-6363-0707(致电发送详情地址)
预约来电看房享售楼处内部专享特惠,免费专车接送看房
087163630707