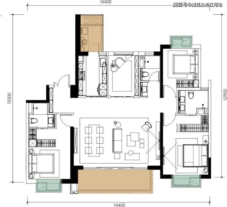
昆明华润润府售楼处联系电话,最新成交价格详情,在售户型全方位参考,优惠活动实时资讯,楼盘动态全览及在线咨询服务
扫描到手机,新闻随时看
扫一扫,用手机看文章
更加方便分享给朋友
087162228885






087162228885
声明:本文由入驻焦点开放平台的作者撰写,除焦点官方账号外,观点仅代表作者本人,不代表焦点立场。
扫一扫,用手机看文章
更加方便分享给朋友
087162228885






087162228885
声明:本文由入驻焦点开放平台的作者撰写,除焦点官方账号外,观点仅代表作者本人,不代表焦点立场。
正在加载中,请稍后...